Works

施工事例

リフォーム・リノベーション承ります。
お問い合わせはこちらから

01

ROOM PLAN

築年月 1983 年 5 月/75.01 ㎡

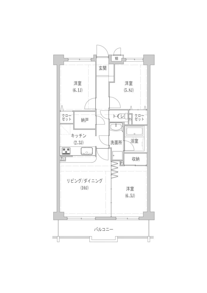
BEFORE
施工箇所 全体/ 施工費 約933 万円/ 工事期間 約 2 ヵ月半
AFTER

和室を洋室に、壁付けキッチンを対面キッチンへ変更。電気温水器を給湯器に変えたことで、 洗面所スペースが広く有効活用できるようになりました。

02

ROOM PLAN
築年月 1983 年 5 月/75.01 ㎡
BEFORE
施工箇所 全体/ 施工費 約933 万円/ 工事期間 約 2 ヵ月半
AFTER

和室をフローリングに変更してリビングを広げ、 独立キッチンを対面キッチンへ変更しました。
コンクリートが綺麗だったのでそのまま現しに。

 

03

ROOM PLAN
築年月 1997 年 10 月/74.18 ㎡
BEFORE
工事箇所 全体/ 施工費 約1,200 万円 / 工事期間 約2 ヵ月
AFTER

海が見える部屋なので、 洋室を壊して狭いリビングを広げました。
使いにくい納戸を WIC に変更。

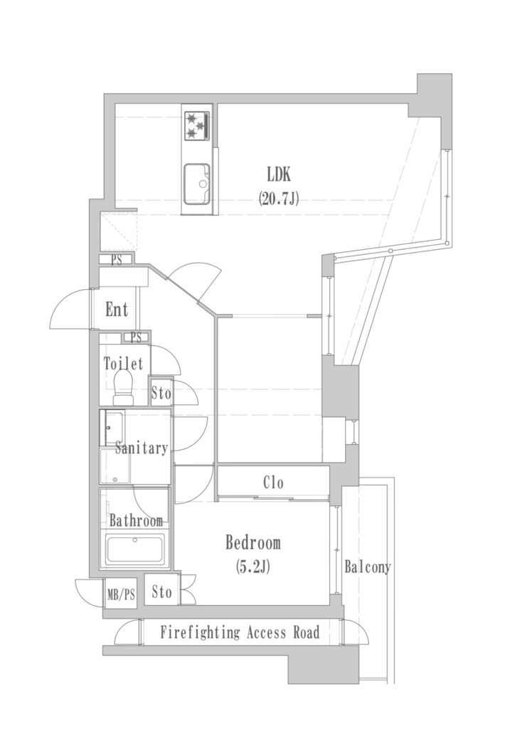
04

ROOM PLAN
築年月 1997 年 2 月/58.20 ㎡
BEFORE
工事箇所 全体/ 施工費 約965 万円/ 工事期間 約 2 ヵ月半
AFTER

暗い中部屋の和室をLDKとしても寝室としても使えるように、あえて扉はつけずにカーテンで区切ったミニマムな洋室に変更。
リビングヘのアプローチも建具を斜めにしたことで、広がりを感じる空間になりました。